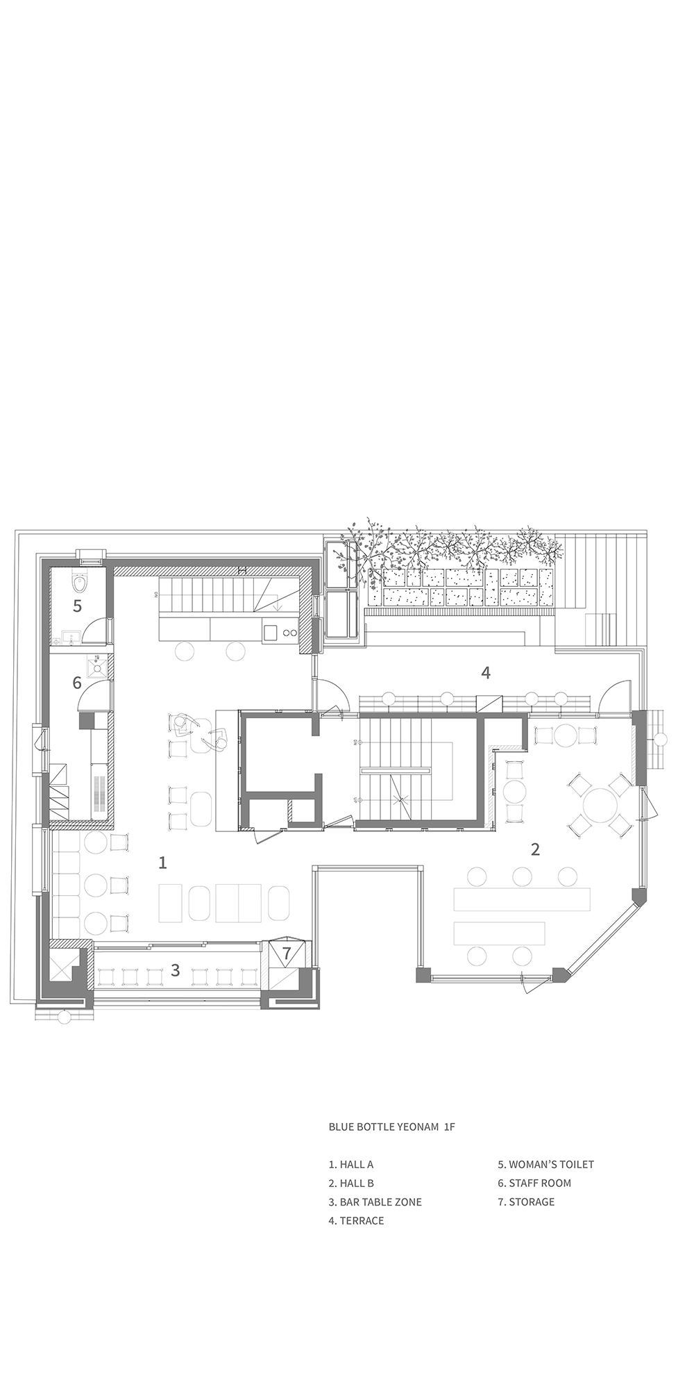
BLUE BOTTLE COFFEE YEONNAM (2023)
Teamvirals designed Blue Bottle Coffee Yeonnam by reinterpreting the alleyways of Seoul to suit it's distinctive location. The space has been designed so that the culture of the alleyway, which used to be a multi purpose playground for children and adults can be continued by Blue Bottle.| COMPLETION DATE | DECEMBER 2023 |
| CLIENT | Blue Bottle Coffee |
| LOCATION | MAPO, SEOUL |
| GROSS FLOOR AREA | 218㎡ |
| INVOLVEMENT | PRODUCT, FURNITURE, INTERIOR |
| PHOTOGRAPHS | JANG MI |
팀바이럴스는 블루보틀 연남점의 위치적 특성에 맞게 서울의 골목길을 재해석하여 디자인했다. 아이들의 놀이터이자 어른들이 가볍게 담소를 나누던 쉼터 역할을 하던 골목길의 문화가 블루보틀에서 이어질 수 있도록 공간을 구현했다.
The Blue Bottle facade is designed with tiles to emulate the distinctive features of Korean brick alleyways. Each house's unique bricks converge to create a lively neighborhood, while the tile pattern effortlessly guides movement inside, following the natural flow dictated by the density and direction of vertical and horizontal lines.
블루보틀의 파사드에는 집집마다 개성있는 벽돌이 모여 하나의 동네를 만드는 골목길의 모습이 담겨있다. 내부로 이어지는 타일의 패턴은 세로선과 가로선이 이루는 밀도와 방향성에 따라 자연스레 동선을 유도한다.
Imagine the charming alleyways of Seoul, where people casually lean against walls, observe the hustle of passersby, and engage in lively conversations with locals while holding onto various tasks. Cafes, in these settings, embody the essence of Seoul's old alley culture.
담벼락에 기대 앉아 분주히 걷는 사람들을 가만히 바라보고, 동네 사람들과 둘러앉아 소일거리를 손에 쥐고 담소를 나누던 골목길을 떠올리자면, 카페는 현재의 서울에서 옛 골목길의 평상 역할을 하고 있는 듯 하다.
Ascending the stairs aligned with the tiles, the emergence of a brick red wall on the second floor offers a striking contrast with the Gyeongui Line forest park, enticing you to take in the view.
타일을 따라 계단을 오르면 나타나는 2층의 붉은 벽면은 경의선 숲길과 대비를 이뤄 외부의 풍경에 시선을 머물게 한다.
The pyeongsang tailored to individual houses, the furniture inspired by the inviting steps of the cozy alleys, and the ceiling's pipeline, envisioned with the influence of gas pipes along the walls, are seamlessly blended into the space to represent the historical and contemporary essence of the Yeonnam-dong alley.
집집마다 개인의 필요에 맞게 만들어놓은 평상, 편하게 걸터앉는 골목의 계단에서 영감을 얻는 가구와 담벼락의 가스배관에서 착안한 천정의 파이프라인은 연남동 골목의 과거와 현재를 조화롭게 아우른다.











